Die luxuriös ausgestatteten Suiten und Villen des COMO Cocoa Island reihen sich in der Lagune an einem Steg entlang, 17 der Wasservillen sind im Stil des für die Malediven charakteristischen Dhonis (Boot) gebaut. Die Einrichtung ist bewusst schlicht – dabei jedoch sehr edel: luftige Baumwolle, viel Holz, erdfarbene Teppiche und farbenfrohe Sitzkissen. Ausgestattet mit: Bad, separater Dusche, Bademantel, Föhn, TV, DVD-/CD-Player, Telefon, WLAN (ohne Gebühr), Klimaanlage, Minibar, Kaffee-/Teezubereiter, Safe und sichtgeschützter Terrasse mit direktem Zugang zum Meer. Auf den Zimmern werden täglich Früchte und Mineralwasser bereitgestellt.
Wohneinheiten
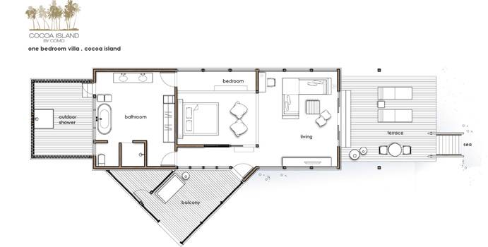
Dhoni Water Villa
75 qm Wohnfläche inklusive Terasse
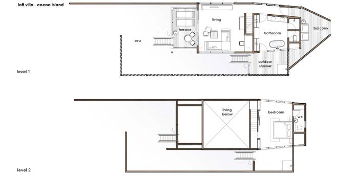
Dhoni Loft Water Villa
110 qm Wohnfläche
2 Ebenen, offener Wohnbereich Parterre
in der oberen Ebene Schlaf- und Badezimmer
Loft Water Villa
123 qm Wohnfläche
2 Ebenen, offener Wohnbereich Parterre
in der oberen Ebene Schlaf- und Badezimmer
Water Villa mit 1 Schlafzimmer und Pool
125 qm Wohnfläche inklusive Terasse
ebenerdig
optisch getrennter Wohn-/ Schlafbereich
privater Pool
Como Water Villa
300 qm Wohnfläche inklusive Terrasse
2 Schlafzimmer, 2 Bäder
Überwasser-Balkon
privater Pool
